起订:1台
供应:100台
发货:1天内
立即购买










静电除尘器的工作原理是利用高压电场使烟气发生电离,气流中的粉尘荷电在电场作用下与气流分离。负极由不同断面形状的金属导线制成,叫放电电极。

正极由不同几何形状的金属板制成,叫集尘电极。静电除尘器的性能受粉尘性质、设备构造和烟气流速等三个因素的影响。粉尘的比电阻是评价导电性的指标,它对除尘效率有直接的影响。比电阻过低,尘粒难以保持在集尘电极上,致使其重返气流。比电阻过高,到达集尘电极的尘粒电荷不易放出,在尘层之间形成电压梯度会产生局部击穿和放电现象。这些情况都会造成除尘效率下降。
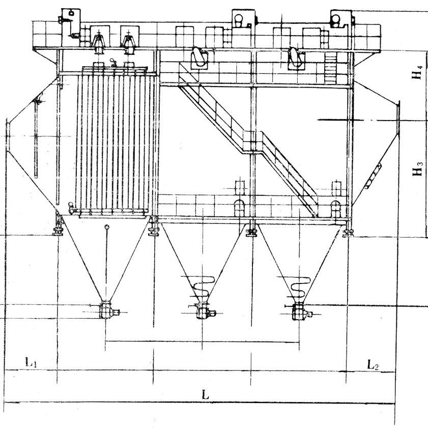
静电电除尘器由两大部分组成:一部分是电除尘器本体系统;另一部分是提供高压直流电的供电装置和低压自动控制系统。电除尘器的结构原理图如图1所示,高压供电系统为升压变压器供电,除尘器集尘极接地。低压电控制系统用来控制电磁振打锤、卸灰电极、输灰电极以及几个部件的温度。
工作原理编辑
电除尘器的基本原理是利用电力捕集烟气中的粉尘,主要包括以下四个相互有关的物理过程:(1)气体的电离。(2)粉尘的荷电。(3)荷电粉尘向电极移动。(4)荷电粉尘的捕集。
荷电粉尘的捕集过程:在两个曲率半径相差较大的金属阳极和阴极上,通过高压直流电,维持一个足以使气体电离的电场,气体电离后所产生的电子:阴离子和阳离子,吸附在通过电场的粉尘上,使粉尘获得电荷。荷电极性不同的粉尘在电场力的作用下,分别向不同极性的电极运动,沉积在电极上,而达到粉尘和气体分离的目的。
